Expression of Interest closes: Wednesday 3rd December 2025 by 3pm
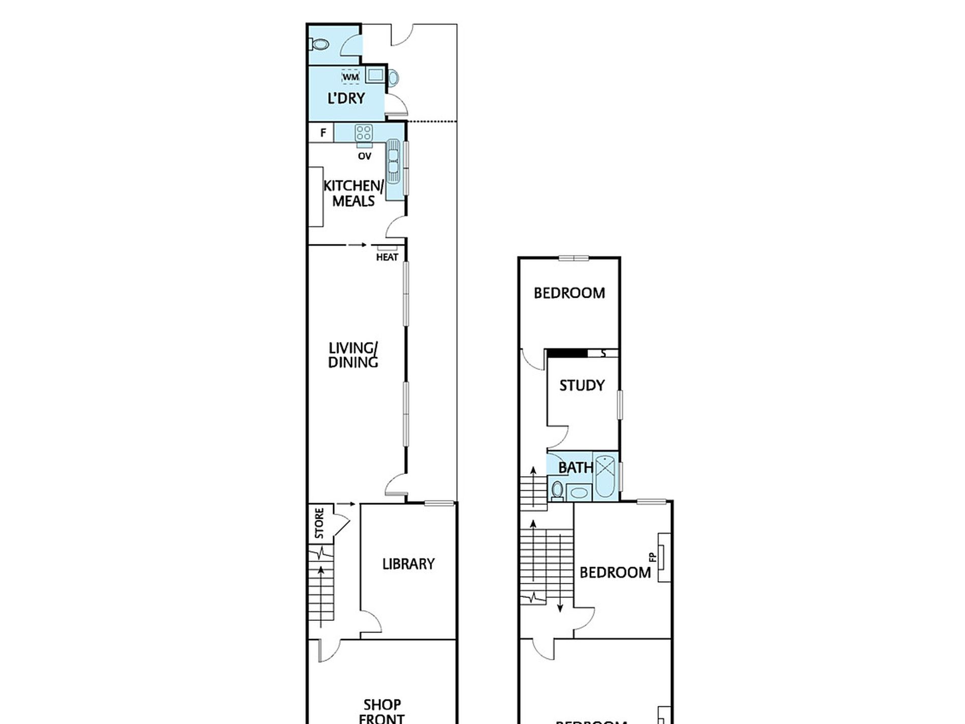
A blank canvas double storey terrace on the CBD fringe, boasting a prime location with dual access via a ROW.
versatile double storey freehold offering excellent opportunity for retail, hospitality, or shop plus residence/office (STCA).
Prominent Brunswick street frontage near the corner of Gertrude Street and situated amongst Melbourne's most vibrant mix of cafes, restaurant, bars & boutiques.
A versatile ground level floorplan boasting high ceilings and period finishes, mantel fire places, living area and kitchen complimented by 4 rooms upstairs, all serviced by the central bathroom and second external toilet.
Commercial 1 Zoning set on approx.129m2 in a city fringe position.























